Engine Compartment Lift
(Mirror from http://members.cox.net/lotuseuropa)
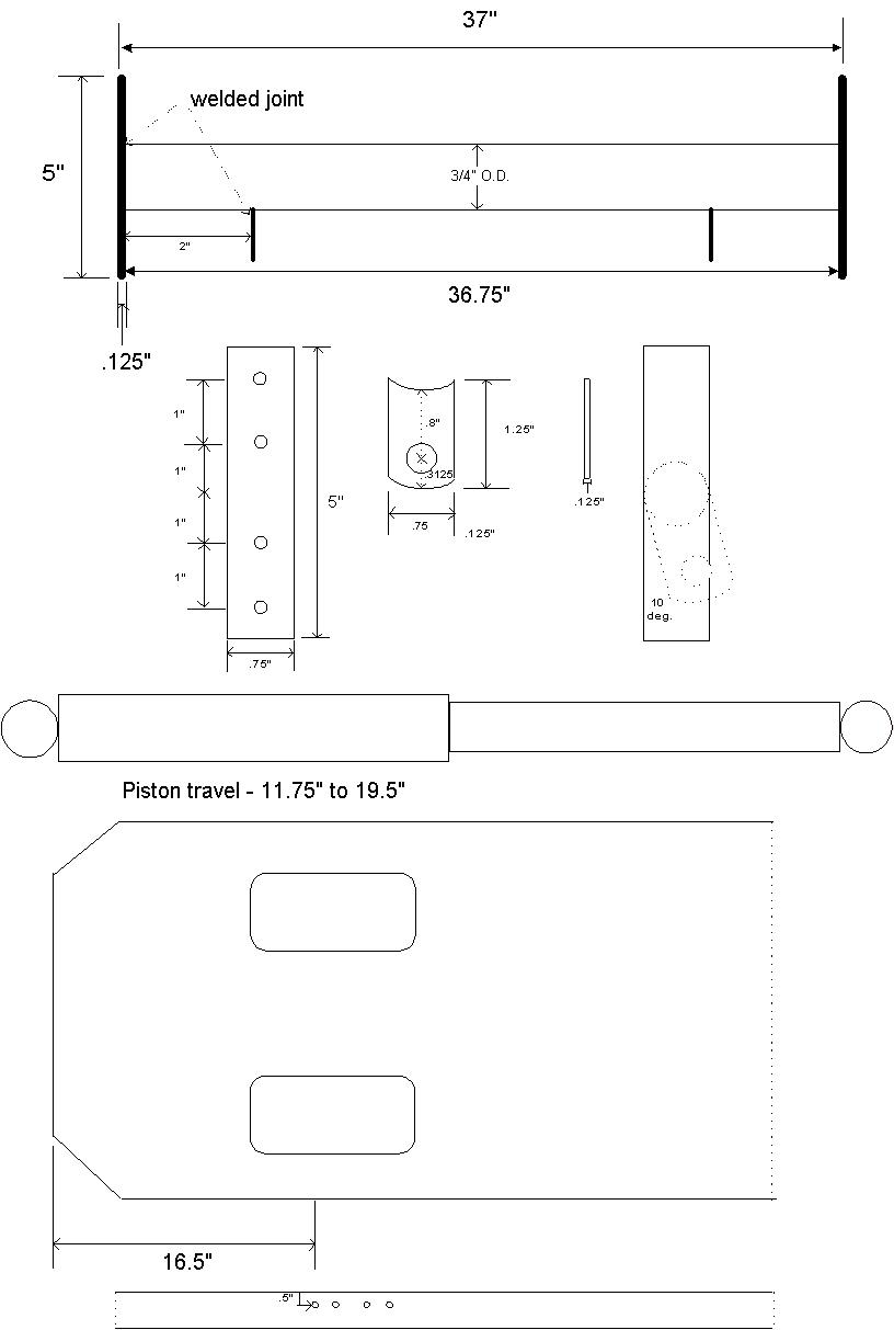
I used parts purchased from McMaster-Carr and my local Ace Hardware store. By trial and error, I found that 20lb gas springs worked best for me. The whole project cost me less than $45. If you want to build your own, here are the supplies and part numbers I used:
Parts list:
- 2 Gas springs - 9416K191 (threaded ends 8.27" stroke length, 20 lb Force, M6 male thread - $11.39 ea)
- 4 Steel 10 mm Ball Socket - 9416K71 (for M6 thread fixed-force gas spring - $1.25 ea)
- 4 Steel Ball Mounting Hardware - 9512K73 (10 mm ball stud W/5/16"-18 male thread - $1.00 ea)
- Four feet of 3/4" steel tube from hardware store
- Four foot length of aluminum channel from hardware store
- Six inches of steel flat stock
- One foot of aluminum flat stock
- Pop rivets and rivet tool
- Access to a small welder
- Some black spray paint
|
Here are some diagrams with dimensions of the components - diagram 1 - diagram 2
 |  |
| It really works! The right picture shows how the braces attach to the car. Aluminum pop rivets were used. |
 |  |
| Red arrows points to where original bolts were removed. I ground the welds off with a Dremel tool and a cut off wheel. |
 |  |
Last update: 25 Jan. 2002